Circular Intelligence Pavilion
Partner: Lilli Geen| Spring 2020 | Design VI
Project Recognition:
UTSOA Design Excellence Award
Every year, the World Economic Forum is held in Davos, Switzerland where leaders, advocates, and corporate influencers engage in conversations around broad global concerns. Many of these attendees include technology companies, such as an American company that specializes in big data analytics. Their pavilion at the Forum is crucial because they rely on direct client interactions to form a positive reputation and maintain client privacy.
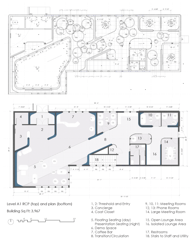
This project aims to provide them with a space that establishes different levels of privacy and personability to harbor the “trilateral connections” that the company strives for. This company is also one that seeks to set the precedent for what technology can do. In a similar manner, a wood wall system of layers and contoured curves is used to organize space, integrate systems and reflect a new and memorable image for their brand and for technological design typologies.
These developments focused on construction, integration, and deconstruction in order to provide conditions for “trilateral connections” in a temporary pavilion space.






You must be logged in to post a comment.